Не упусти свой шанс! Последние акции от застройщиков  ▼

Продается 2-комнатная квартира, Летчика Ивана Федорова ул., 2К2

9 500 000 Р

Химки г. (Химки гор. округ)

Летчика Ивана Федорова ул.2К2

Дата публикации: 23 мая 2025

Дата обновления: 17 мая 2026

Телефон: 
Показать телефон

+7 (499) 372-92-13

Агентство:  МИЭЛЬ

От застройщика: 0 квартир в продаже

Этаж: 8 / 9

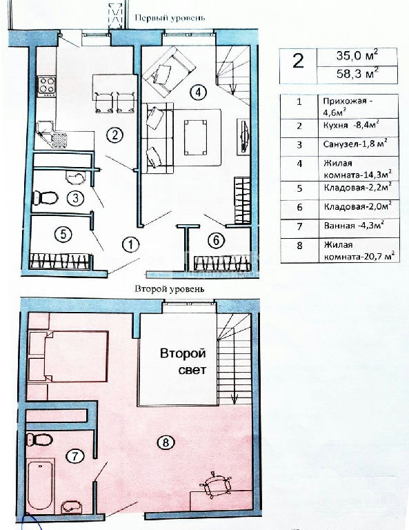
Общая: 59,3 м2

Жилая: 35 м2

Кухня: 8,4 м2

Комнаты: не указано

Балкон/лоджия: балкон

Лифт: есть лифт

Окна: окна во двор

Санузел: совмещенный

Мусоропровод: не указано

Состояние квартиры: требуется ремонт

Тип дома: монолитный

Год постройки: 2014

Территория: огороженная

Парковка: не указано

Статус сделки: продажа

Сделка: прямая продажа

Собственность: не указано

Основание права собственности: не указано

Описание

Код объекта: 1237014.Уютная двухуровневая квартира в ЖК "Город набережных" гармония природы и городского комфорта Современный городской комфорт и вдохновляющая атмосфера в живописном ландшафте ваша новая жизнь с видом на лес и реку! Описание квартиры:- **Концепция и планировка:** необычный, очень интересный проект, позволяющий воплотить разнообразные дизайнерские решения. Открытое пространство со "вторым светом" создаёт ощущение простора и лёгкости. - **Первый уровень:** восьмиметровая кухня с балконом, просторная жилая комната с лестницей на второй этаж и возможностью зонирования в два яруса. - **Второй уровень:** большая обособленная жилая комната идеальное уединённое место для отдыха и работы.- **Окна и вид:** балкон и панорамные окна выходят во двор с живописным видом на берег реки Клязьмы. Установлены качественные окна *Rehau*.- **Санузлы:** два санузла по одному на каждом уровне. Дом и двор:- **ЖК "Город набережных":** живописный жилой комплекс 2013 года постройки с искусственными каналами, набережными и архитектурой в стиле старой Италии.- **Дом:** монолитный, три подъезда, современные лифты.- **Двор:** благоустроенная территория с детскими и спортивными площадками, прогулочными зонами. Вся придомовая территория под видеонаблюдением.- **Парковка:** подземный и наземный многоуровневый паркинг. Транспортная доступность:- **Расположение:** 11 км от Москвы. Удобные выезды на Ленинградское, Дмитровское шоссе и платную трассу *М11*. ЖК входит в зону парковки каршеринга.- **Общественный транспорт:** остановка в 5 минутах ходьбы. За 2030 минут можно добраться до станций *МЦД* "Хлебниково" (*МЦД-1*), "Химки" (*МЦД-3*), метро "Планерная", "Беломорская", "Речной вокзал", "Физтех".- **Аэропорт:** 510 минут на автомобиле до аэропорта "Шереметьево". Инфраструктура рядом:- **Природа:** ЖК окружён лесами, в 2 км Клязьминское водохранилище. Чистый воздух, великолепные закаты и рассветы. Несмотря на близость к аэропорту, здесь тихо.- **Образование:** школа и детский сад "Лесная сказка" 9 минут пешком.- **Медицина:** рядом многопрофильная клиника *АО "Медицина"* лидер отечественного здравоохранения.- **Сервисы:** на территории ЖК есть всё для жизни: магазины, пекарни, кафе, пункты выдачи, почта, банки, аптеки, ателье, химчистки, салоны красоты, фитнес-клубы, солевая пещера. Условия продажи:- **Тип продажи:** свободная продажа.- **Собственник:** один собственник.- **Юридическая чистота:** без обременений и долгов, полная стоимость в договоре, быстрый выход на сделку. Преимущества МИЭЛЬ:- Покупателю выдаётся Правовой сертификат, гарантирующий юридическую чистоту объекта.- Возможна ипотека с особыми условиями для клиентов МИЭЛЬ от банков-партнёров.- Работаем с любыми источниками финансирования (материнский капитал, военный сертификат и т. д.). **Воплотите мечту о жизни в гармонии с природой и комфортом большого города!**

Квартира на карте

ПанорамыКарта
Спецпредложения
Добавить объявление